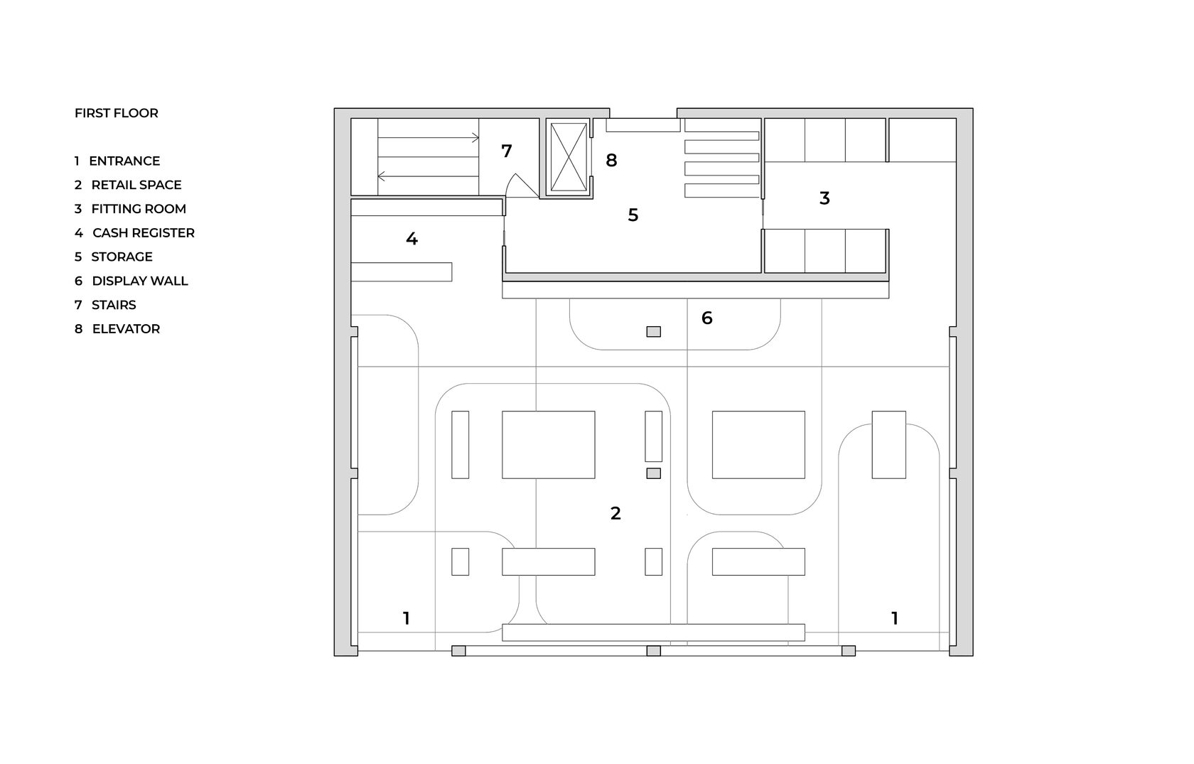
CONCEPT STORE
INTERIOR DESIGN / RETAIL
2022


Сoncept Store design project - inspired by industrial spaces, its structure, textures and hidden parts, such as metal pipes, wires and air ducts. The old parts of the existing structure are used as furniture, counters and clothing racks. Reused with a new function, keeping the industrial ambiance.
The Leed screen panel along the entire wall creates a spatial aesthetic and movement of reflections in contrast to the monochrome industrial design.

The result is an exclusive, functional space that boldly contrasts the simple design, with the color spectrum of the designer's pieces.
In this project, we have not bypassed our interest in the digital discipline, which we integrate into architecture and fashion. The store and online platform also features virtual collections of young designers, including our Vinyl collection.